類別:美國進口閥門 ? 發布時間:1970-01-01 08:00 ? 瀏覽: 次

進口衛生級止回閥描述--
ALSO進口衛生級止回閥屬于自動閥門,防止管路中的介質回流,當流體的壓力大于彈簧的抽吸壓力時,止回閥自動打開,兩種作用力相當或流體壓力小于彈簧壓力時,閥門關閉,或者逆向壓力作用也可以使閥門關閉。
進口衛生級止回閥原理--
1.當閥桿下部的壓力超過閥桿上面的壓力以及彈簧力時,止回閥開啟。
2.當閥桿上、下壓力平衡肘,閥門就會關閉
3.一個更高的逆向壓力會作用于閥桿使其關閉
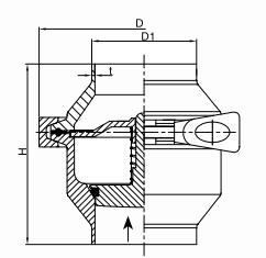
進口衛生級止回閥設計標準--
止回閥的閥體分為兩個部分,通過卡箍組裝在-起,并用一種特殊密封圈進行密封,一個導向圓片可用來引尋彈簧,并配有矩型密封圈的閥芯。
進口衛生級止回閥技術數據--
壓力:10Bar ,垂直安裝打開壓力6Kpa,水平安裝打開壓力0.2Bar,最大輸送物料壓力為1000Kpa
溫度:-10~+120℃
金屬材料:產品過流鋼制部件S304/S316L,其他鋼制部件:304
密封材質:標配EPDM三元乙丙,選配FPM氟橡膠,VMQ硅橡膠
溫度:-20~+100℃~180℃
壓力:0~10Bar 控制氣源壓力5-8Bar
表面處理:內表面處理Ra1≤0.8μm 外表面處理Ra1≤1.6μm
連接標準:DIN/SMS/RJT/ISO/IDF/3A 焊接/快裝/螺紋/法蘭
壓力降/處理能力對比圖

進口衛生級止回閥用途--
衛生級止回閥主要用于保護液體回吸的損失,防止管道液擊。通常安裝在食品、飲料、釀酒、純水、制藥、化妝品、飲料、化學制品工業管路中。
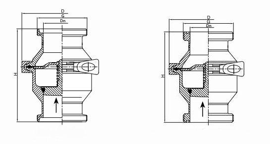
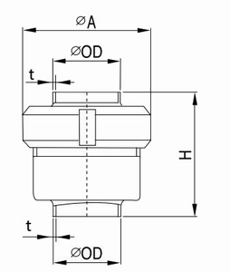
進口衛生級止回閥外形尺寸--
衛生級焊接止回閥


衛生級卡箍止回閥


衛生級螺紋止回閥


衛生級活接止回閥




