類別:美國進口閥門 ? 發布時間:1970-01-01 08:00 ? 瀏覽: 次

進口電動襯氟球閥描述--
ALSO進口電動襯氟球閥由一體化電裝和襯氟球閥構成的,以電源即可控制運轉,通常用于管道介質的遠程開關或調節(接通、切斷介質)控制,是對閥門實現遠控、集控和自控必不可少的驅動裝置。
進口電動襯氟球閥零件材料--
| 零件名稱 | 材料 | |||
|---|---|---|---|---|
| 閥體、閥蓋 | WCB+F46 | 304(CF8)+F46 | 316(CF8M)+F46 | 316L(CF3M)+F46 |
| 球體 | 2Cr13+氮化處理+46 | 304+46 | 316+46 | 316L+46 |
| 閥桿 | 2Cr13+46 | 304+46 | 316+46 | 316L+46 |
| 閥座密封圈 | PTFE、碳素纖維+PTFE | |||
| 密封填料 | V型聚四氟乙烯填料 | |||
襯氟球閥應用--
襯氟球閥閥體內腔及球芯均采用高壓注塑工藝襯有耐腐蝕、耐老化的聚全氟乙炳烯,故具有可靠的耐腐蝕性和密封性。電動襯氟球閥主要用于對生產過程中酸堿等強腐蝕介質的調節或切斷。電動襯氟球閥具有連線簡單,結構緊湊、尺寸小、重量輕、阻力小、動作穩定可靠等優點。
進口電動襯氟球閥技術參數及性能指標--
| 公稱通徑(mm) | 15 | 20 | 25 | 32 | 40 | 50 | 65 | 80 | 100 | 125 | 150 | 200 | 250 | 300 |
|---|---|---|---|---|---|---|---|---|---|---|---|---|---|---|
| 公稱壓力(MPa) | PN1.0、1.6MPa | |||||||||||||
| 泄漏量 | 軟密封:零泄漏 | |||||||||||||
| 閥體形式 | 兩段式閥體(浮動球體) | 兩段式閥體(固定球體) | ||||||||||||
| 閥芯形式 | “O”型球形閥芯 | |||||||||||||
| 密封填料 | 聚四氟乙烯(PTFE) | |||||||||||||
| 連接形式 | 法蘭 | |||||||||||||
| 可調范圍 | DN15-65 | DN80-300 | ||||||||||||
| 250:1 | 350:1 | |||||||||||||
| 基本誤差 | ±1% | |||||||||||||
| 死區 | ≤1% | |||||||||||||
| 回差 | ≤1% | |||||||||||||
| 適用溫度 | 密封面 | |||||||||||||
| PTFE≤180℃ | ||||||||||||||
| 配置執行機構 | 配角行程電動執行機構 | |||||||||||||
| 控制方式 | 開關到位燈(開關兩位控制)、智能調節(4~20mA模擬量控制 | |||||||||||||
進口電動襯氟球閥電裝性能特點--
1.殼體--殼體為硬質鋁合金,經陽極氧化處理和聚酯粉末圖層,耐腐蝕性強,防護等級為IP67,NEMA4和6,并有IP68型供選擇。
2.電機--全封閉式鼠籠式電機,體積小,扭矩大,慣性力小,絕緣等級為F級,內置熱保護開關。
3.手動結構一手柄的設計保證安全可靠、省力、體積小。不通電時使用。扳動手柄可進行手動操作。不用手動時,將板手置于板手夾內.方便。
4.指示器一指示器安裝在中心軸上,可以觀察閥門位置。透鏡采用凸出鏡設計,不積水,觀察更方便。
5.干操器一用來控制溫度,防止由于溫度和天氣變化導致執行器內部水分凝結,保持內部電氣元件的干燥。
6.密封一密封性好,標準產品防護等級是1P67,并可選IP68防護等級。
7.限位開關一機械、電子雙重限位。機械限位螺釘可調,安全可靠;電子限位開關由凸輪機構來控制,簡單的調整機構能精確并方便地設定位置,且不受手輪過量的影響。
8.自鎖一精密的蝸輪蝸桿機構可高效傳輸大扭距,效率高,噪音低(最大50分貝),壽命長;有自鎖功能,防止反轉,傳動部分穩定可靠,無需再加油。
9.防脫螺栓一拆除外殼時,螺栓附在殼體上,不會脫落。
10.安裝一底部安裝尺寸符合IS0國際標準,孔成雙四方形便于帶方桿的閥線性或45°轉角安裝,適應性強。可以垂直安裝,也可以水平安裝。
11.線路一控制線路符合單相或三相電源標準,線路布置緊湊合理。接線端子可有效滿足各種附加功能的要求。
| 執行器類別 | JOX系列執行器參數 | 3610R系列執行器參數 | JHQ系列執行器參數 |
|---|---|---|---|
| 電源電壓 | 標準:220V AC單相 可選:110V AC 單相、380/440V AC 三相、24V/110V/220V AC | ||
| 輸出力矩 | 50N·M~2000N·M | 50N·M~1500N·M | 50N·M~3000N·M |
| 動作范圍 | 0~90° 0~360° | 0~90° | 0~90°、0°~270°可選 |
| 控制方式 | 開關到位燈(開關兩位控制)、無源觸點信號、1/5K電位計、智能調節(4~20mA模擬量信號控制) | ||
| 動作時間 | 15秒/30秒/60秒 | 10秒/15秒/30秒 | 18S~112S |
| 保護裝置 | 過熱保護 | 過載保護 | 內置過熱保護、過載保護 |
| 環境溫度 | -30°~60° | -30°~60° | -20℃~+70℃ |
| 手動操作 | 同附帶手柄操作 | 同附帶手柄操作 | 機械離合機構,配手輪操作 |
| 機械限位 | 電氣、機械二重限位 | 電氣、機械二重限位 | 2個外部調整螺栓 |
| 防護等級 | IP65 | IP55 | IP65、IP67、可定制IP68 |
| 防爆等級 | 無防爆 | ExdⅡ BT4 | ExdⅡ BT4,ExdⅡ CT6 |
| 位置測量 | 可選裝開關或電位計 | 比例控制單元 | 電位計、比例控制單元 |
| 驅動電機 | 8W/E | AC可逆電機 | 鼠籠式異步電機 |
| 進線接口 | PE1/2〞進線線鎖 | 2-PF 1/2〞進線線鎖 | 2個 PF 3/4” |
| 殼體材料 | 鋁合金 | 鋼,鋁合金 | 鋼,鋁合金,鋁青銅,聚碳酸脂 |
| 外涂層 | 干粉,環氧聚酯,具有超強防腐功能 | ||
| 采用獨特的電制動線路,因而定位精度高,執行機構靈敏,啟動停止迅速,運行平穩。同時具有抗干擾、抗浪涌電壓、防擊穿能力強的特點 | |||
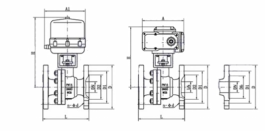
進口電動襯氟球閥外形尺寸--

| 公稱通徑 DN(mm) | 15 | 20 | 25 | 32 | 40 | 50 | 65 | 80 | 100 | 125 | 150 | 200 | 250 | 300 | |
|---|---|---|---|---|---|---|---|---|---|---|---|---|---|---|---|
| L | 130 | 140 | 150 | 165 | 180 | 200 | 220 | 250 | 280 | 320 | 360 | 457 | 533 | / | |
| H、A | 由于閥門密封選擇及溫度選擇不同,執行器尺寸需根據實際配置 | ||||||||||||||
| A1 | 防爆型 | 137 | 137 | 137 | 137 | 137 | 137 | 137 | 137 | 137 | 137 | 137 | 137 | 137 | 137 |
| 標準型 | 40 | 40 | 40 | 40 | 40 | 40 | 40 | 40 | 40 | 40 | 40 | 40 | 40 | 40 | |
| PN1.6MPa法蘭連接尺寸 | |||||||||||||||
| D | 95 | 105 | 115 | 140 | 150 | 165 | 185 | 200 | 220 | 250 | 285 | 340 | 405 | 460 | |
| D1 | 65 | 75 | 85 | 100 | 110 | 125 | 145 | 160 | 180 | 210 | 240 | 295 | 355 | 410 | |
| D2 | 46 | 56 | 65 | 76 | 84 | 99 | 118 | 132 | 156 | 184 | 211 | 266 | 319 | 370 | |
| b | 14 | 16 | 16 | 18 | 18 | 20 | 22 | 24 | 24 | 26 | 28 | 24 | 26 | 28 | |
| f | 2 | 2 | 2 | 2 | 2 | 2 | 2 | 2 | 2 | 2 | 2 | 2 | 2 | 2 | |
| n-φd | 4-14 | 4-14 | 4-14 | 4-18 | 4-18 | 4-18 | 4-18 | 8-18 | 8-18 | 8-18 | 8-22 | 12-22 | 12-26 | 12-26 | |
| PN2.5MPa法蘭連接尺寸 | |||||||||||||||
| D | 95 | 105 | 115 | 140 | 150 | 165 | 185 | 200 | 235 | 270 | 300 | 360 | 425 | 485 | |
| D1 | 65 | 75 | 85 | 100 | 110 | 125 | 145 | 160 | 190 | 220 | 250 | 310 | 370 | 430 | |
| D2 | 46 | 56 | 65 | 76 | 84 | 99 | 118 | 132 | 156 | 184 | 211 | 274 | 330 | 389 | |
| b | 14 | 16 | 16 | 18 | 18 | 20 | 22 | 24 | 24 | 26 | 28 | 34 | 38 | 42 | |
| f | 2 | 2 | 2 | 2 | 2 | 2 | 2 | 2 | 2 | 2 | 2 | 2 | 2 | 2 | |
| n-φd | 4-14 | 4-14 | 4-14 | 4-18 | 4-18 | 4-18 | 8-18 | 8-18 | 8-22 | 8-26 | 8-26 | 12-26 | 12-30 | 16-30 | |


