類別:美國進口閥門 ? 發布時間:1970-01-01 08:00 ? 瀏覽: 次

進口電動偏心半球閥描述--
ALSO電動雙偏心半球閥由回轉型角行程電動執行器和偏心半球閥組成,屬旋轉類型高性能開關或調節閥,接受工業自動化控制儀表來源的電流信號或電壓信號的輸入輸出,可實現對工藝管路中流體介質的流量調節或二位開關控制,通常用于管道介質的遠程控制,是對閥門實現遠控、集控和自控必不可少的驅動裝置
進口電動偏心半球閥球閥特點--
1.啟閉件采用V型半球結構,解決了工業生產中的漿狀、混流液體、灰塵等介質在管道輸送中沉淀、易結垢、阻塞,使閥門關不嚴等問題。
2.開關輕便,開啟時球與殼體脫離,無任何接觸,啟動扭矩小,轉動靈活。關閉時,半球與閥座的擠切作用能除去密封面上的污物,使閥門順利啟閉,安全系數高,密封性能好。
3.密封面的偏心結構,使球面能自動補償磨損,能保持閥門的密封,使用壽命長。
4.偏心半球閥V型切口的球芯與金屬閥座之間具有剪切作用,特別適用于含纖維、微小固體顆粒及料漿等介質。
5.球閥采用板簧加載的可動閥座結構,閥座與球體不會產生卡阻或脫離等問題,密封可靠,使用壽命長
6.全開啟時閥門的流通能力大,壓力損失小,通用性強,調節時流量特性為近似等百分比,可調范圍大,最大可調比為100:1
進口電動偏心半球閥性能參數--
| 公稱壓力MPa | 1.0 | 1.6 | 2.5 | 4.0 |
|---|---|---|---|---|
| 閥門強度試驗壓力MPa | 1.5 | 2.4 | 3.8 | 6.0 |
| 閥門密封試驗壓力MPa | 1.1 | 1.8 | 2.8 | 4.5 |
| 適用溫度℃ | ≤425℃ ≤325℃常溫 | |||
| 主要材質 | 鑄鋼、不銹鋼 | |||
| 適用介質 | 煤粉、煤灰、含塵、氣 | |||
進口電動偏心半球閥零件材料--
| 零件名稱 | 材料 | |||
|---|---|---|---|---|
| 閥體、閥蓋 | WCB | 304(CF8) | 316(CF8M) | 316L(CF3M) |
| 球體 | 2Cr13+氮化處理 | 304 | 316 | 316L |
| 閥桿 | 2Cr13 | 304 | 316 | 316L |
| 閥座密封圈 | PTFE、碳素纖維+PTFE、對位聚苯、金屬密封 | |||
| 密封填料 | V型聚四氟乙烯填料、含浸聚四氟乙烯石棉填料、石棉紡織填料、石墨填料 | |||
進口電動偏心半球閥典型應用--
1、通用閥:適用于污水處理、紙漿、城市采暖供熱等要求嚴緊的場合。
2、油化工專用閥:適用于原油、重油等各類油品、化工行業弱腐蝕、二相混流介質。
3、燃氣專用閥:適用于煤氣、天燃氣、液化氣的輸送控制。
4、料漿專用閥:適用于液態、固態兩相混流或液態輸送中化學反應有結晶析出或結垢的工業管道輸送。
5、煤粉灰渣專用閥:耐磨,適用于電廠、水力除渣或氣態輸送管道的控制。
進口電動偏心半球閥電裝可選--
電壓:AC220/380/110V、DC24V等;
開關型、調節型(4-20mA);
普通或防爆要求;
開關機械限位,開關位置可微調;
可手動操作;
可視指示器;
| 執行器類別 | JO系列執行器參數 | 3610R系列執行器參數 | HQ系列執行器參數 |
|---|---|---|---|
| 電源電壓 | 標準:220V AC單相 可選:110V AC 單相、380/440V AC 三相、24V/110V/220V AC | ||
| 輸出力矩 | 50N·M~2000N·M | 50N·M~1500N·M | 50N·M~3000N·M |
| 動作范圍 | 0~90° 0~360° | 0~90° | 0~90°、0°~270°可選 |
| 控制方式 | 開關到位燈(開關兩位控制)、無源觸點信號、1/5K電位計、智能調節(4~20mA模擬量信號控制) | ||
| 動作時間 | 15秒/30秒/60秒 | 10秒/15秒/30秒 | 18S~112S |
| 保護裝置 | 過熱保護 | 過載保護 | 內置過熱保護、過載保護 |
| 環境溫度 | -30°~60° | -30°~60° | -20℃~+70℃ |
| 手動操作 | 同附帶手柄操作 | 同附帶手柄操作 | 機械離合機構,配手輪操作 |
| 機械限位 | 電氣、機械二重限位 | 電氣、機械二重限位 | 2個外部調整螺栓 |
| 防護等級 | IP65 | IP55 | IP65、IP67、可定制IP68 |
| 防爆等級 | 無防爆 | ExdⅡ BT4 | ExdⅡ BT4,ExdⅡ CT6 |
| 位置測量 | 可選裝開關或電位計 | 比例控制單元 | 電位計、比例控制單元 |
| 驅動電機 | 8W/E | AC可逆電機 | 鼠籠式異步電機 |
| 進線接口 | PE1/2〞進線線鎖 | 2-PF 1/2〞進線線鎖 | 2個 PF 3/4” |
| 殼體材料 | 鋁合金 | 鋼,鋁合金 | 鋼,鋁合金,鋁青銅,聚碳酸脂 |
| 外涂層 | 干粉,環氧聚酯,具有超強防腐功能 | ||
| 采用獨特的電制動線路,因而定位精度高,執行機構靈敏,啟動停止迅速,運行平穩。同時具有抗干擾、抗浪涌電壓、防擊穿能力強的特點 | |||
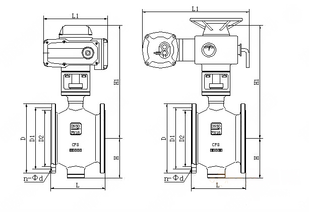
進口電動偏心半球閥外形尺寸--

| PN1.0MPa (10bar) | |||||||||
| 32 | 180 | 357 | 140 | 100 | 76 | 18 | 4-18 | 65 | 450 |
| 40 | 200 | 357 | 150 | 110 | 84 | 18 | 4-18 | 75 | 460 |
| 50 | 250 | 357 | 165 | 125 | 99 | 20 | 4-18 | 90 | 480 |
| 65 | 270 | 357 | 185 | 145 | 118 | 20 | 4-18 | 105 | 500 |
| 80 | 280 | 367 | 200 | 160 | 132 | 20 | 8-18 | 120 | 520 |
| 100 | 300 | 367 | 220 | 180 | 156 | 22 | 8-18 | 135 | 630 |
| 125 | 325 | 367 | 250 | 210 | 184 | 22 | 8-18 | 155 | 650 |
| 150 | 350 | 367 | 285 | 240 | 211 | 24 | 8-22 | 175 | 680 |
| 200 | 400 | 555 | 340 | 295 | 266 | 24 | 8-22 | 210 | 770 |
| 250 | 533 | 555 | 395 | 350 | 319 | 26 | 12-22 | 260 | 820 |
| 300 | 610 | 691 | 445 | 400 | 370 | 26 | 12-22 | 300 | 840 |
| 350 | 686 | 733 | 505 | 460 | 429 | 26 | 16-22 | 340 | 1090 |
| 400 | 838 | 733 | 565 | 515 | 480 | 26 | 16-26 | 400 | 1205 |
| 450 | 864 | 938 | 615 | 565 | 530 | 28 | 20-26 | 430 | 1220 |
| 500 | 914 | 938 | 670 | 620 | 582 | 28 | 20-26 | 455 | 1270 |
| 600 | 1067 | 1066 | 780 | 725 | 682 | 34 | 20-30 | 560 | 1400 |
| 700 | 1250 | 1066 | 895 | 840 | 794 | 34 | 24-30 | 630 | 1460 |
| 800 | 1370 | 1191 | 1015 | 950 | 901 | 36 | 24-33 | 690 | 1520 |
| 900 | 1490 | 1191 | 1115 | 1050 | 1001 | 38 | 28-33 | 770 | 1580 |
| 1000 | 1680 | 1255 | 1230 | 1160 | 1112 | 38 | 28-36 | 880 | 1830 |
| 1200 | 1750 | 1255 | 1455 | 1380 | 1328 | 44 | 32-39 | 970 | 1910 |
| 1400 | 1880 | 1255 | 16754 | 1590 | 1530 | 48 | 36-42 | 1095 | 2020 |
| PN1.6MPa (16bar) | |||||||||
| 32 | 180 | 357 | 140 | 100 | 76 | 18 | 4-18 | 65 | 450 |
| 40 | 200 | 357 | 150 | 110 | 84 | 18 | 4-18 | 75 | 460 |
| 50 | 250 | 357 | 165 | 125 | 99 | 20 | 4-18 | 90 | 480 |
| 65 | 270 | 357 | 185 | 145 | 118 | 20 | 4-18 | 105 | 500 |
| 80 | 280 | 367 | 200 | 160 | 132 | 20 | 8-18 | 120 | 520 |
| 100 | 300 | 367 | 220 | 180 | 156 | 22 | 8-18 | 135 | 630 |
| 125 | 325 | 367 | 250 | 210 | 184 | 22 | 8-18 | 155 | 650 |
| 150 | 350 | 367 | 285 | 240 | 211 | 24 | 8-22 | 175 | 680 |
| 200 | 400 | 555 | 340 | 295 | 266 | 24 | 12-22 | 210 | 770 |
| 250 | 533 | 555 | 405 | 355 | 319 | 26 | 12-26 | 260 | 820 |
| 300 | 610 | 691 | 460 | 410 | 370 | 28 | 12-26 | 300 | 840 |
| 350 | 686 | 733 | 520 | 470 | 429 | 30 | 16-26 | 340 | 1090 |
| 400 | 838 | 733 | 580 | 525 | 480 | 32 | 16-30 | 400 | 1205 |
| 450 | 864 | 938 | 640 | 585 | 548 | 40 | 20-30 | 4, 30 | 1220 |
| 500 | 914 | 938 | 715 | 650 | 609 | 44 | 20-33 | 455 | 1270 |
| 600 | 1067 | 1066 | 840 | 770 | 720 | 54 | 20-36 | 560 | 1400 |
| 700 | 1250 | 1066 | 910 | 840 | 794 | 40 | 24-36 | 630 | 1460 |
| 800 | 1370 | 1191 | 1025 | 950 | 901 | 42 | 24-39 | 690 | 1520 |
| 900 | 1490 | 1191 | 1125 | 1050 | 1001 | 44 | 28-39 | 770 | 1580 |
| 1000 | 1680 | 1255 | 1255 | 1170 | 1112 | 46 | 28-42 | 880 | 1830 |
| PN2.5MPa (25bar) | |||||||||
| 32 | 180 | 357 | 140 | 100 | 76 | 18 | 4-18 | 65 | 450 |
| 40 | 200 | 357 | 150 | 110 | 84 | 18 | 4-18 | 75 | 460 |
| 50 | 250 | 357 | 165 | 125 | 99 | 20 | 4-18 | 90 | 480 |
| 65 | 290 | 357 | 185 | 145 | 118 | 22 | 8-18 | 105 | 500 |
| 80 | 310 | 367 | 200 | 160 | 132 | 24 | 8-18 | 120 | 520 |
| 100 | 350 | 367 | 235 | 190 | 156 | 24 | 8-22 | 135 | 630 |
| 125 | 381 | 555 | 270 | 220 | 184 | 26 | 8-26 | 155 | 650 |
| 150 | 403 | 555 | 300 | 250 | 211 | 28 | 8-26 | 175 | 680 |
| 200 | 419 | 555 | 360 | 310 | 274 | 30 | 12-26 | 210 | 770 |
| 250 | 568 | 691 | 425 | 370 | 330 | 32 | 12-30 | 260 | 880 |
| 300 | 648 | 705 | 485 | 430 | 389 | 34 | 16-30 | 300 | 980 |
| 350 | 762 | 733 | 555 | 490 | 448 | 38 | 16-33 | 340 | 1090 |
| 400 | 838 | 938 | 620 | 550 | 503 | 40 | 16-36 | 400 | 1165 |
| 450 | 914 | 938 | 670 | 600 | 548 | 46 | 20-36 | 430 | 1220 |
| 500 | 991 | 938 | 730 | 660 | 609 | 48 | 20-36 | 455 | 1270 |
| 600 | 1143 | 1066 | 845 | 770 | 720 | 58 | 20-39 | 560 | 1400 |


